何晓梅自建房改扩建项目位于丹棱县张场镇,该项目建筑设计方案已经由丹棱县国土空间规委会办公室联席会2025年第四次会议审议通过。为保证规划的公开、透明,根据有关规定,现对该方案进行批前公示。公示期自2025年7月25日至2025年8月5日,共7个工作日。如有意见和建议,请在公示期内以真实姓名(附联系电话)向我局反映。
网上公示:https://www.scdl.gov.cn/zfxxgk/fdzdgknr/ghxx/zxgh.htm
意见受理:丹棱县规划和自然资源局
电 话:028-37208898
028-37202891

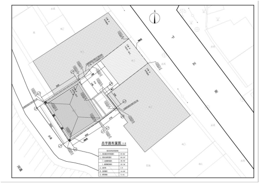
总平面图

鸟瞰图