简体版 | 繁体版
当前位置: 首页 -> 政府信息公开 -> 法定主动公开内容 -> 规划信息 -> 专项规划 -> 正文
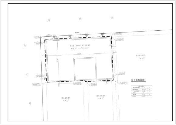
丹棱县规划和自然资源局关于罗玉芳、汤钟文、汤中能危房重建项目建筑设计方案的批前公示
来源:丹棱县规划和自然资源局 发表时间:2024-11-18 16:19 【字号:  

罗玉芳、汤钟文、汤中能危房重建项目位于丹棱县齐乐镇,该项目建筑设计方案已经由丹棱县国土空间规划委员会2024年第四次全体成员会审议通过。

为保证规划的公开、透明,根据有关规定,现对该方案进行批前公示。公示期自2024年11月18日至2024年11月26日,共7个工作日。如有意见和建议,请在公示期内以真实姓名(附联系电话)向我局反映。

意见受理:丹棱县规划和自然资源局

电 话:028-37208898

总平面图

效果图